Plantegning Zoom

ETPLANSVILLA MED EN SMUK HAVE

Del bolig

I Tved er der både foreningsliv, skole og indkøb inden for kort rækkevidde af denne etplansvilla, som også i sig selv vil glæde familien. Her er der nemlig intet mindre end fem værelser, herlige opholdsmiljøer og mere til, ligesom den yderst charmerende have vækker begejstring.

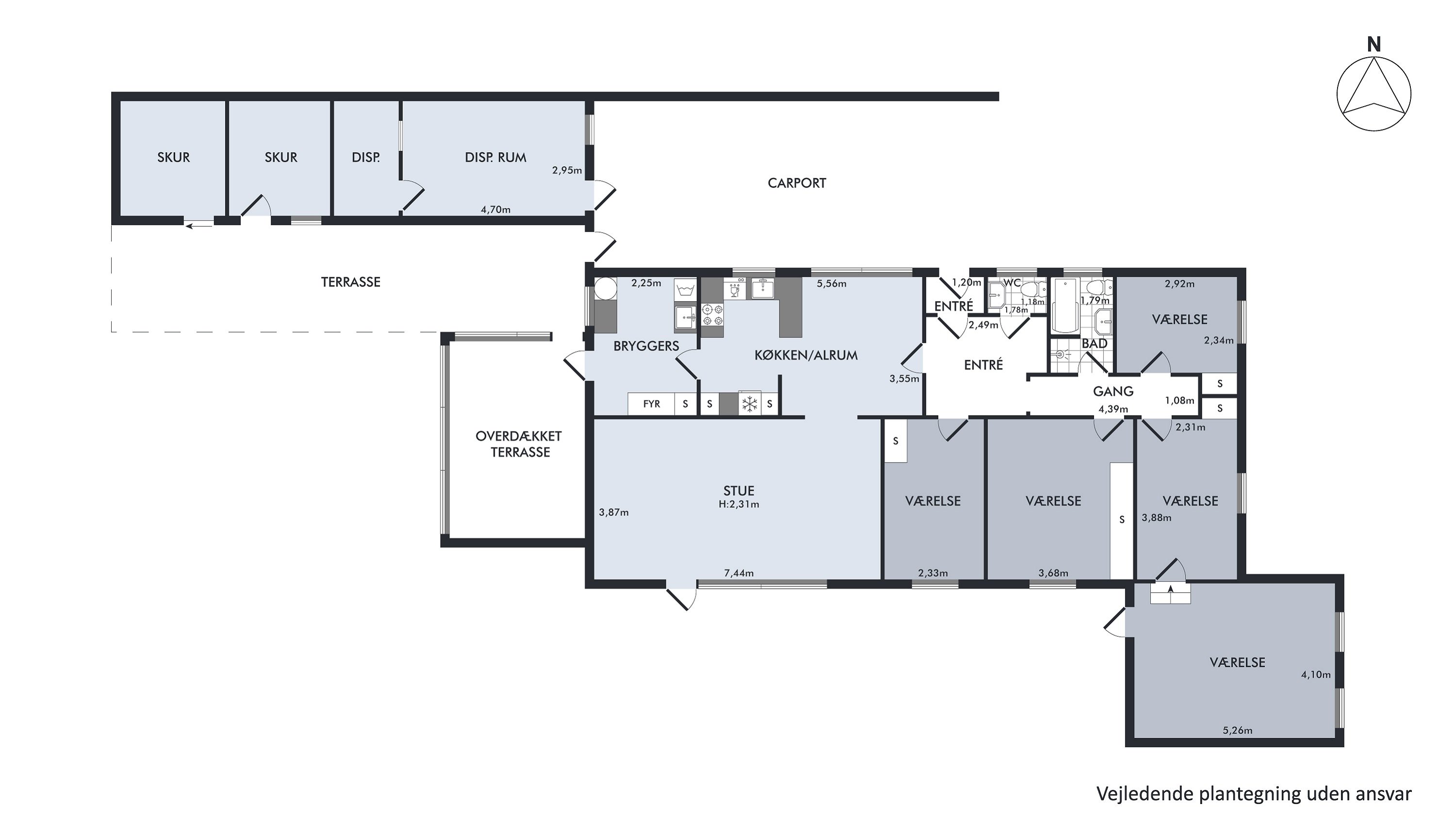
Køkken-alrummet ligger i direkte forbindelse med stuen, og til sammen udgør opholdsmiljøet husets hjerte. Stuen er lys med vinduespartierne og terrassedøren mod syd, og størrelsen giver plads til både sofahjørnet og det lange middagsbord. I kan nemlig også have et spiseafsnit i køkken-alrummet, hvor køkkenet desuden fremtræder pænt i den mørkegrå tone. Fra køkkenet er der adgang til bryggerset, som har egen indgang.

Det er den klassiske planløsning, I kan se frem til, hvor fordelingsentréen giver adgang til en samlet soveafdeling. Her ligger der fire værelser, hvoraf det ene har et stort værelse i forlængelse, så det kan oplagt blive forældresuite, der kan indledes af et walk-in-closet eller et hjemmekontor. Det er i samme område, at I finder gæstetoilettet samt badeværelset, der både har bruseniche og badekar.

Glæd jer til at træde ud i den forrygende have. Den er holdt flot med varieret beplantning som selskab til græsplænen, og der er flere hyggelige kroge at se frem til. Blandt andet får I et område med højbede, der er en bålplads, og så har I flere gode terrasser, hvoraf dele er overdækkede. Den ene terrasse er endda også lukket af til siderne, så her kan I forlænge sæsonen. I forbindelse med carporten er der en række skure.

Ejendommen ligger i et rart kvarter i Tved, hvor der er legepladser lige i nærheden, og I har heller ikke langt til Tved Klimaskov, ligesom I hurtigt kan tage del i de mange aktiviteter i Tvedhallen. Samtidig er det praktiske tæt på med under 700 meter til indkøb, skole og daginstitution. Bussen stopper mindre end 100 meter væk, og i bil er der fem minutter til motorvejen.

Vi glæder os til at møde jer på en fremvisning.
Tvedvej 169, 5700 Svendborg
Pris: 2.095.000 kr. | Kontakt Kasper Lynge Hansen: 30140279
Tvedvej 169, 5700 Svendborg
Pris:
2.095.000 kr.
Få boliglån på 24 timer:
Få boliglån
Type:
Villa
Boligareal:
140
Kælderareal:
0
Grund:
1115
Værelser:
7
Energimærke:
E
Bygget/ombygget:
1964
Ejerudgift pr. md.
1.753 kr.

Kasper Lynge Hansen

Ejendomsmægler, MDE, Køberrådgiver med tryghedsmærke klh@brikk.dk +45 30140279

Boliglån

Få et boliglån på helt ned til 24 timer.

Ansøg om boliglån

Ansøg om boliglån. Servicen er gratis og vi sætter dig i kontakt med den bank / institution der vurderes at passe bedst til din situation.

Selv hvis du tidligere er blevet afvist, eller hvis du ikke kan få f.eks. et variabelt lån, plejer vores partnere at kunne hjælpe. Vi udbyder servicen i samarbejde med en række banker, realkreditinstitutter og alternative ejendomskreditlånsløsninger.

Få en gratis vurdering

Gør som 100vis af andre og sælg med Brikk. Start med en gratis vurdering fra din lokale mægler og specialist nu.

Få en gratis vurdering

Bestil Dokumenter

Tilmeld åbent hus