Plantegning Zoom
Plantegning Zoom
Plantegning Zoom

SOLGT! Unik lejlighed med elevator, delealtan og den smukkeste udsigt over Ørestad!

Del bolig


 
Beliggende blandt Ørestadens naturrigdom finder I denne indbydende lejlighed, der er at finde i M-huset, som er arkitekttegnet af Bjarke Ingels Group. Hjemmet er præget af interessante skæve vinkler samt vinduer fra gulv til loft, hvilke gør denne lejlighed til noget helt særligt. Her kan I indrette jer både anderledes og hyggeligt, mens I kan drage fordel af Ørestadens mange muligheder.
 
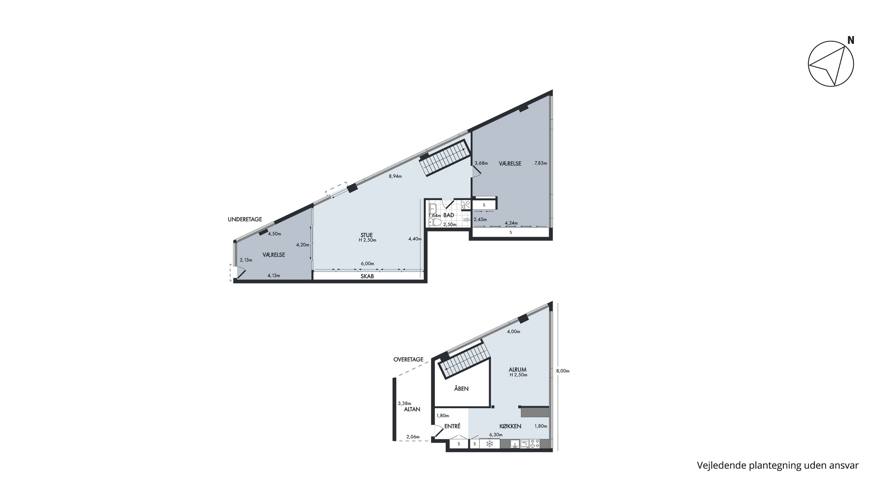
Lejligheden fordeler sig over to plan og disponerer over to værelser, en rummelig stue, et køkkenalrum, badeværelse, entré. Entréen åbner op med plads til det praktiske i form af et indbygget skab, hvor I herfra nemt kan bevæge jer ind i køkkenalrummet. Gennemgående er denne lejlighed præget af lys og smukke udsigter, grundet de store vinduesparter fra gulv til loft. Selve køkkendelen er opført i kvalitetsrige og stilrene materialer. Her kan I hurtigt finde jer til rette omkring et godt spisebord, mens en panoramaudsigt over Ørestaden kan indtages - De store vinduer giver jer udsigt til nord, vest, syd og til dels øst, hvor fugletrafikken kan beundres.
 
Vender I opmærksomheden mod hjemmets fine værelser, kan I finde jer selv i afslappende opgivelser, hvor gulv til loft vinduerne igen præger rummene. Her bliver der skabt nogle behagelige oaser med udsyn over himmel og land. Udover disse detaljer er hjemmet indrettet med plankegulve og højt til loftet. Badeværelset fremstår skarpt i moderne detaljer, hvor I ikke kommer til at mangle separat bruseniche, plads til de nødvendige toiletsager og vaskefaciliteter. Indenfor dette hjems døre er der altså tænkt på alt, mens I ovenikøbet også får hele to franske altaner.
 
Søger I endnu et dejligt område, kan I vende blikket mod delealtanen, der giver jer et hyggeligt udeareal. Her kan I slappe af og nyde et afbræk fra hverdagen - mens I også kan gøre brug af bygningens store, fælles terrasse, der ikke er langt fra jer. Nedenfor lejligheden finder I parkeringsmuligheder til cyklerne.
 
Denne placering er ikke bare mere og mere eftertragtet grundet Københavns voksende størrelse, men også grundet alle de muligheder I finder her. Om I søger indkøb, offentlig transport i form af både bus, metro og tog eller shopping i Field’s, er alle disse ideelle muligheder, hvor metrostationen kun er fem minutter fra jer. I gåafstand finder I også en streethall, hvor både børn og voksne frit kan dyrke sport, og så rummer Ørestaden desuden svømmehal, bibliotek samt Royal Arena. Det bedste ved området er dog naturen, hvor både Amager og Kalvebod Fælled byder sig til udflugter og lange gåture. Helt lokalt finder I Byparken, der ikke bare byder på grønne områder, men også petanquebane, fodboldbane og grillområder.
OBS: kommende facadeprojekt - nye vinduer som tætner facaden. 
Ørestads Boulevard 57A, 9. 907., 2300 København S
Pris: 0 kr. | Kontakt Stephan Morales: 30140168
Ørestads Boulevard 57A, 9. 907., 2300 København S
Pris:
0 kr.
Få boliglån på 24 timer:
Få boliglån
Type:
Ejerlejlighed
Boligareal:
143
Værelser:
3
Energimærke:
A2010
Bygget/ombygget:
2005
Ejerudgift pr. md.
0 kr.

Stephan Morales

Ledende ejendomsmægler, MDE sm@brikk.dk +45 30140168

Boliglån

Få et boliglån på helt ned til 24 timer.

Ansøg om boliglån

Ansøg om boliglån. Servicen er gratis og vi sætter dig i kontakt med den bank / institution der vurderes at passe bedst til din situation.

Selv hvis du tidligere er blevet afvist, eller hvis du ikke kan få f.eks. et variabelt lån, plejer vores partnere at kunne hjælpe. Vi udbyder servicen i samarbejde med en række banker, realkreditinstitutter og alternative ejendomskreditlånsløsninger.

Få en gratis vurdering

Gør som 100vis af andre og sælg med Brikk. Start med en gratis vurdering fra din lokale mægler og specialist nu.

Få en gratis vurdering

Bestil Dokumenter

Tilmeld åbent hus