Plantegning Zoom

SOLGT! VELHOLDT ETPLANSVILLA I NATURSKØNNE OMGIVELSER

Del bolig

Vil I rykke teltpælene op og flytte fra det larmende storbyliv til en rolig og charmerende by? Så skal I læse med videre, da vi udbyder en fin etplansvilla i Søvind, endda med nyere tagpap tag fra 2020 og solcelleanlæg.

Marker og skovområder omgiver den lille by Søvind, hvor den smukke naturs mange muligheder er i fokus; gå for eksempel mod Brigsted, hvor I kan gå helt ned til fjorden, tag ned og bad på den lavvandede strand, eller gå på opdagelse efter det rige dyreliv i Søvind Skov - I kan endda gå langs Trampestien. Byen byder derudover på en skole, sportsaktiviteter, en legeplads og en købmand, som alt sammen ligger inden for gåafstand. Pendler I, kan I køre til Horsens på et kvarter og Aarhus på 45 minutter.

Når bilen parkeres i carporten, vil I på få skridt træde ind i den solrige have, der udgøres af en grøn græsplæne, en overdækket terrasse og en høj hæk, som sikrer privatlivets fred. Og når efteråret sætter ind, kan de bløde havemøbler, haveredskaberne og deslige opbevares i et af de to skure.

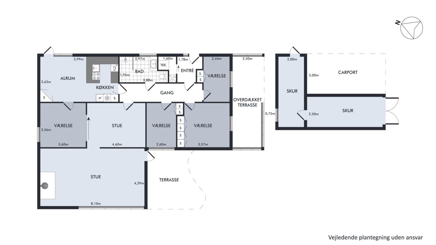
De dejlige rammer fortsætter indenfor, hvor et velholdt og lyst indre udfolder sig over 164 kvadratmeter, og her kan børnefamilien såvel som parret, der ønsker sig flere kvadratmeter at boltre sig på, skabe sig et dejligt hjem. Den gode planløsning byder på fire gode soveværelser, et flot køkken, som har fyldningsfronter, pæne greb og godt med bord- og skabsplads, et badeværelse, der har væghængt toilet og separat brus, og naturligvis en entré.

Hjemmets hjerte er, hvor de to rummelige stuer forenes i en delvis åben forbindelse. Det er et rum, der nyder godt af et behageligt lysindfald fra det store vinduesparti, og den fine murstensbænk tilfører rummet et råt udtryk, og pejsen sørger for både hygge og varme.

Vi glæder os til at møde jer på en fremvisning.
Nyvangen 13, 8700 Horsens
Pris: 0 kr. | Kontakt Mads Dyg Nielsen: 30145851
Nyvangen 13, 8700 Horsens
Pris:
0 kr.
Få boliglån på 24 timer:
Få boliglån
Type:
Villa
Boligareal:
164
Kælderareal:
0
Grund:
923
Værelser:
4
Energimærke:
A2010
Bygget/ombygget:
1964/1976
Ejerudgift pr. md.
0 kr.
Mads Dyg Nielsen - Brikk Ejendomsmægleren - Juelsminde - Stouby - Barrit - Tørring - Uldum - Vonge - Jelling - Gadbjerg - Give - Brande - Ejstrupholm - Hampen - Herning - Bryrup - Horsens - Daugård - Hedensted - Løsning - Hovedgård - Brædstrup - Gedved - Østbirk - Flemming - Rask Mølle - Klovborg - Nørre Snede - Stenderup - Hornsyld

Mads Dyg Nielsen

Ledende Salgs- og Vurderingsspecialist mads@brikk.dk +45 30145851

Boliglån

Få et boliglån på helt ned til 24 timer.

Ansøg om boliglån

Ansøg om boliglån. Servicen er gratis og vi sætter dig i kontakt med den bank / institution der vurderes at passe bedst til din situation.

Selv hvis du tidligere er blevet afvist, eller hvis du ikke kan få f.eks. et variabelt lån, plejer vores partnere at kunne hjælpe. Vi udbyder servicen i samarbejde med en række banker, realkreditinstitutter og alternative ejendomskreditlånsløsninger.

Få en gratis vurdering

Gør som 100vis af andre og sælg med Brikk. Start med en gratis vurdering fra din lokale mægler og specialist nu.

Få en gratis vurdering

Bestil Dokumenter

Tilmeld åbent hus