Plantegning Zoom

ETPLANSVILLA MED SKØN HAVE VED GUDENÅEN

Del bolig

Beliggende tæt ved Gudenåen udbydes nu en etplansvilla, der opfylder alle børnefamiliens behov - eller måske I er et par på udkig efter nogle ekstra kvadratmeter? Tre minutter til skolen, nærheden til det indre Silkeborg, naturen helt tæt på, og en fantastisk rumvirkning i det store åbne køkkenalrum med loft til kip.

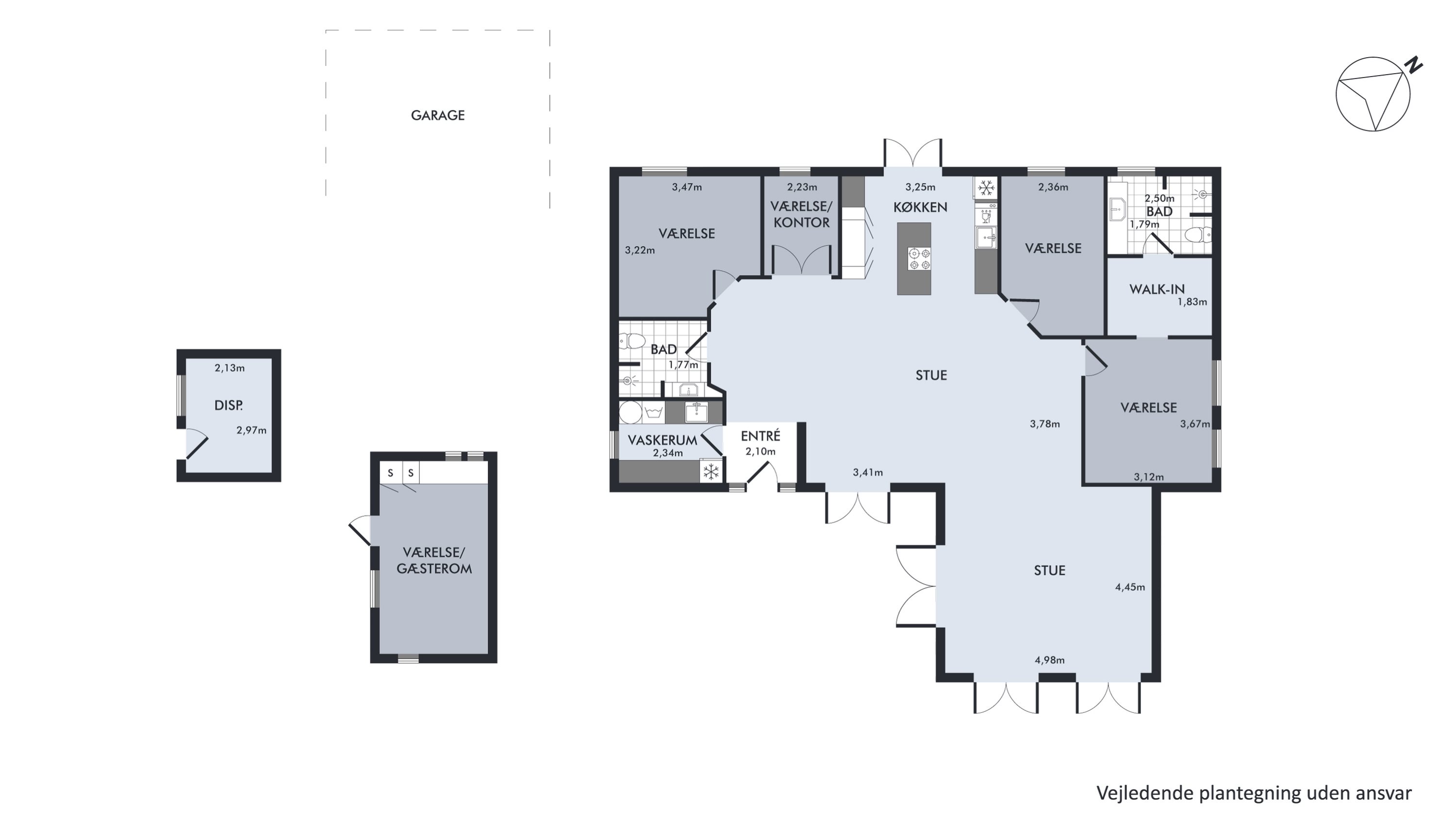
Der er fuldstændig styr på den bekvemme hverdag, da planløsningen fordeler sig over to badeværelser, fire værelser. Det ene af værelserne har walk-in-closet, der leder direkte til eget badeværelse og skaber en perfekt forældreafdeling med masser af privatliv og komfort. Fra entréen har I på venstre hånd adgang til et bryggers, som råder over vaske- og tørrefaciliteter samt skabsplads.

Og nu til hjertet af huset: Opholdsrummet, hvor grænsen mellem de to stuer og køkkenet udviskes totalt. Her kan I fra talrige vinkler, mens I samles om spisebordet eller slænger jer i sofaen, nyde det flotte udsyn til alt det grønne i haven. Ved det lyse køkkens kogeø kan I tilmed indrette et par siddepladser, hvor man kan følge madlavningen på klos hold. Det hele omgærdes af en fantastisk åben og luftig fornemmelse, da loftet i den ene stue og køkkenet strækker sig højt til kip med ovenlysvinduer, der lukker et naturligt lysindfald ind.

Fra det indbydende samlingspunkt kan I åbne hele fire dobbeltdøre ud mod udelivet i form af to terrasser og en skøn, privat have. Smukke, høje træer pryder grunden, mens den lyse etplansvilla fra 2007 lyser op midt i naturens skiftende farver.

Som en ekstra bonus finder I et hyggeligt gæstehus. Denne charmerende ”hytte” kan fungere som en selvstændig bolig for en teenager, der ønsker lidt ekstra frihed, eller som en skøn overnatningsmulighed for besøgende. Yderligere en carport, hvor bilerne kan holde i tørvejr. Huset har selvfølgelig fuld ventilation med varmegenvinding og gulvvarme i alle rum. I 2025 bliver der indlagt fjernvarme.

Skønne gåture er der allerede fra havekanten, bl.a. den gamle jernbanesti til Hammel og to dejlige ture på pramdragerstien langs Gudenåens bred. Kun fem minutters gang fra huset finder I Silkeborgs eksklusive golfklub med smukke, velplejede baner og en hyggelig caférestaurant. Tre minutters gang er der til skole med op til 6. klassetrin og en kort cykeltur til institution.

Vi glæder os til at møde jer på en fremvisning.
Møllegårdsvej 1B, 8600 Silkeborg
NYHED Pris: 3.349.000 kr. | Kontakt Sebastian Frost-Larsen: 30143773
Møllegårdsvej 1B, 8600 Silkeborg
Pris:
3.349.000 kr.
Få boliglån på 24 timer:
Få boliglån
Type:
Villa
Boligareal:
156
Kælderareal:
0
Grund:
650
Værelser:
5
Energimærke:
B
Bygget/ombygget:
2007
Ejerudgift pr. md.
1.983 kr.

Sebastian Frost-Larsen

Ejendomsmægler MDE sfl@brikk.dk +45 30143773

Boliglån

Få et boliglån på helt ned til 24 timer.

Ansøg om boliglån

Ansøg om boliglån. Servicen er gratis og vi sætter dig i kontakt med den bank / institution der vurderes at passe bedst til din situation.

Selv hvis du tidligere er blevet afvist, eller hvis du ikke kan få f.eks. et variabelt lån, plejer vores partnere at kunne hjælpe. Vi udbyder servicen i samarbejde med en række banker, realkreditinstitutter og alternative ejendomskreditlånsløsninger.

Få en gratis vurdering

Gør som 100vis af andre og sælg med Brikk. Start med en gratis vurdering fra din lokale mægler og specialist nu.

Få en gratis vurdering

Bestil Dokumenter

Tilmeld åbent hus