Plantegning Zoom
Plantegning Zoom

CHARMERENDE VILLA MIDT I LANDIDYLLEN

Del bolig

I Langelands grønne og rolige kulisse kan I nu rykke tilværelsen ud i det hyggelige landsbysamfund, Lejbølle, hvor der er højt til himlen, frisk luft og skøn natur til alle sider - og midt i det hele venter en smuk villa, som blot mangler nye ejere til at føre historien videre.


Fra Rudkøbing tager turen ikke mere end 20 minutter, så I er tæt på bylivets bekvemmeligheder, men det glemmer I hurtigt, når I ankommer til jeres nye adresse, for her er der ro og landlig idyl på menuen. På grunden står den gule villa med sit klassiske tegltag og byder jer velkommen med manér. Huset kan dateres helt tilbage til anden halvdel af 1800-tallet og har oprindeligt været en lokal malermester hvilket man også kan fornemme med den hyggelgie charme når I kommer inden for. Huset fremstår nænsomt istandsat, så sjælen er bevaret, men komforten er nutidig. Og så har huset selskab af en carport til bilen og flere gode skure, der eksempelvis giver plads til et værksted og gør-det-selv-projekterne.


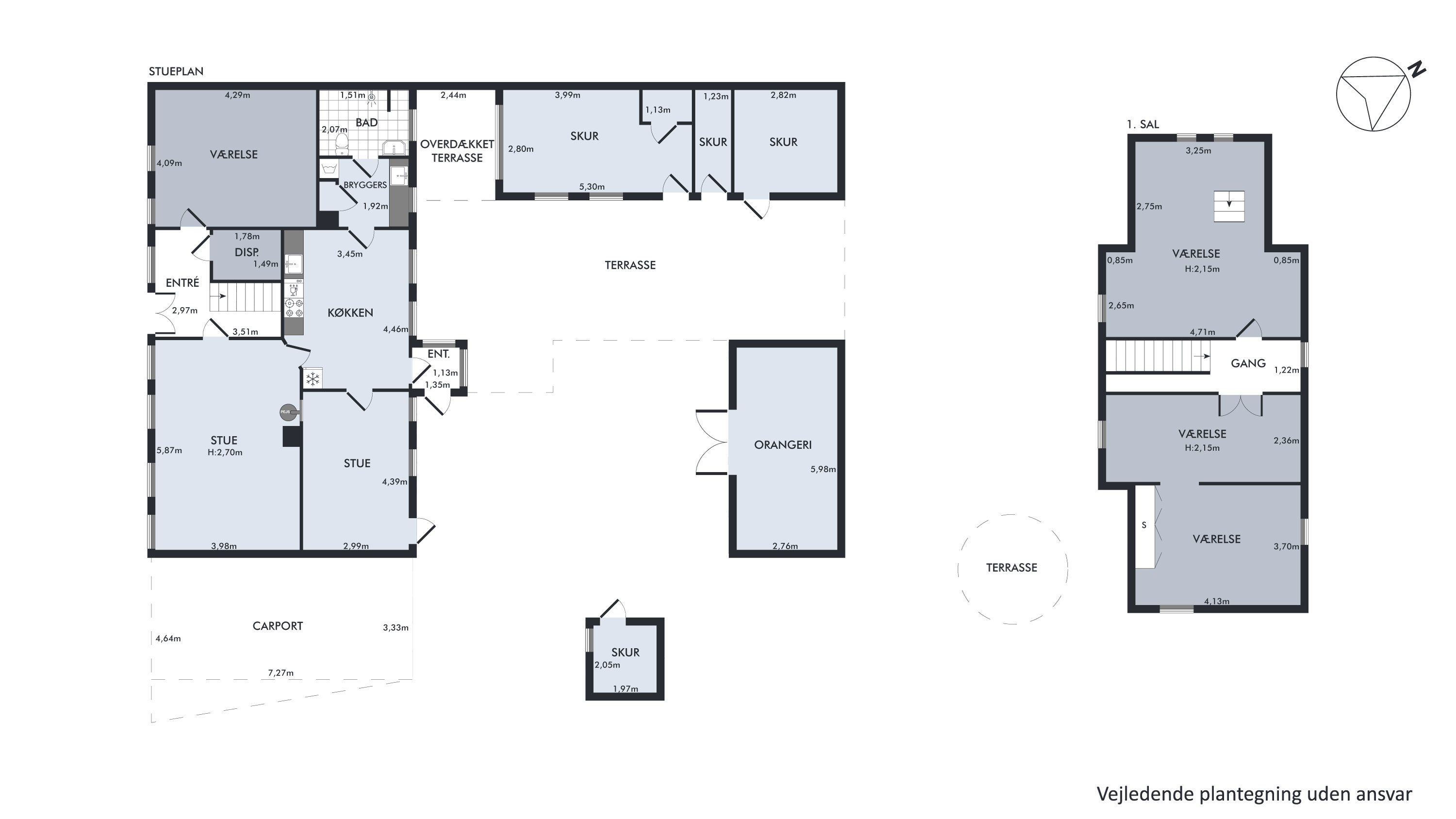
Inden døre venter 165 kvadratmeter fuld af sjæl og charme. Boligen er løbende vedligeholdt med respekt for dets oprindelse, så de flotte plankegulve og fritlagte loftsbjælker stadig pryder rummene på fineste vis. I stueplan får I et værelse, et badeværelse, et bryggers samt hjemmets naturlige opholdsrum, og her er der tale om et spisekøkken med videre afsæt til stuen, hvor brændeovnen spreder varme fra sin plads midt i rummet, mens endnu en stue kan indrettes til hjemmekontoret.


Det gode indtryk fortsætter ovenpå med yderligere tre værelser - inklusiv et gennemgangsværelse - og i det ene finder I endda en hems, som giver ekstra muligheder for leg, opbevaring eller en hyggelig læsekrog.


Huset kan blive et dejligt hjem for såvel parret som børnefamilien, der drømmer om mere luft omkring sig og et liv tæt på naturen. Og roen kan for alvor sænke sig i haven, hvor I kan indtage den brede terrasse eller finde læ i orangeriet, alt imens naturen spiller hovedrollen med åbne vidder, så langt øjet rækker.
Vi glæder os til at møde jer på en fremvisning.
Lejbøllegårdvej 11, 5953 Tranekær

Pris: 995.000 kr. | Kontakt Kasper Lynge Hansen: 30140279
Lejbøllegårdvej 11, 5953 Tranekær
Pris:
995.000 kr.
Få boliglån på 24 timer:
Få boliglån
Type:
Villa
Boligareal:
100
Kælderareal:
0
Grund:
740
Værelser:
5
Energimærke:
F
Bygget/ombygget:
1877
Ejerudgift pr. md.
1.847 kr.

Kasper Lynge Hansen

Ejendomsmægler, MDE, Køberrådgiver med tryghedsmærke klh@brikk.dk +45 30140279

Boliglån

Få et boliglån på helt ned til 24 timer.

Ansøg om boliglån

Ansøg om boliglån. Servicen er gratis og vi sætter dig i kontakt med den bank / institution der vurderes at passe bedst til din situation.

Selv hvis du tidligere er blevet afvist, eller hvis du ikke kan få f.eks. et variabelt lån, plejer vores partnere at kunne hjælpe. Vi udbyder servicen i samarbejde med en række banker, realkreditinstitutter og alternative ejendomskreditlånsløsninger.

Få en gratis vurdering

Gør som 100vis af andre og sælg med Brikk. Start med en gratis vurdering fra din lokale mægler og specialist nu.

Få en gratis vurdering

Bestil Dokumenter

Tilmeld åbent hus