SOLGT! NYD ET SKØNT FAMILIELIV I HOLEBY LIGE VED NATUREN
Har du hovedet fyldt med gode indretningsidéer? På Vestervej 17 kan du udleve drømmen om en familievenlig villa, der ligger noget så dejligt i Holeby - kun en smuttur fra fantastisk natur samt Rødby og Maribo. 114 kvadratmeter byder dig velkommen indenfor.
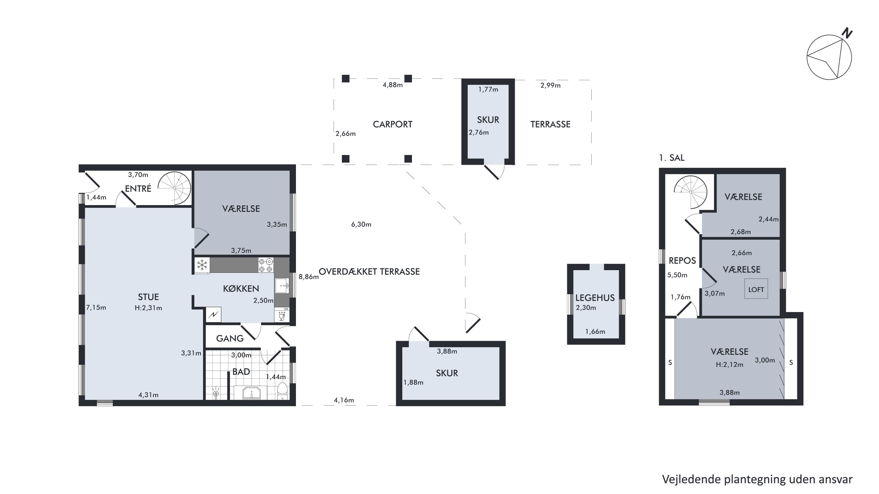
Turen starter i stueplan, hvor en stor entre med indgang til rummelig stue, et køkken, et badeværelse og et godt, regulært værelse.
Ude i entréen kan du følge spindeltrappen op til boligens førstesal. Denne tager afsæt i en repos, som fordeler 2 værelser og et kammer, og her er det største værelse forsynet med masser af praktisk skabsplads. Dermed kan der sagtens blive plads til familien, der drømmer om børneværelser, et hjemmekontor og et kreativitet værksted inden for hjemmets fire vægge.
Udenfor finder du en overdække tterrasse af anseelig størrelse. Her kan du skabe et skønt, udendørs opholdsmiljø med blomstrende planter, bløde loungemøbler og stemningsfuld belysning, som tilsammen sætter scenen for mange hyggelige stunder. Du kan også slappe af på en terrasse, der sammen med haven ligger under åben himmel, og til stor fornøjelse for de små prydes den grønne plæne af et legehus. Matriklen huser yderligere to skure og en carport.
Du ender boligjagten i dejlige Holeby, der sørger for en perlerække af sports- og fritidsaktiviteter. Der er en daginstitution i gåafstand, og efter en kort køretur til Rødby og Maribo samt en halv times kørsel til Nykøbing Falster ankommer du til resten af hverdagens gøremål. Mange naturoplevelser banker desuden på lige i nærheden: Oplev fugleliv ved Røgbølle Sø, sommerfugle samt alskens fugle- og plantearter i Søholt Storskov, heste m.m. i naturreservatet Saksfjed-Hyllekrog og afslapning i vandkanten på en af Østersøens talrige badestrande. Afslutningsvist forbinder motorvejen dig med resten af landet, f.eks. storbylivet i København.
Vi glæder os til at møde dig på en fremvisning.
Vestervej 17, 4960 Holeby
Pris: 0 kr.
| Kontakt Poul Gerdil: 61614949
Vestervej 17, 4960 Holeby
Boliglån
Få et boliglån på helt ned til 24 timer.