Plantegning Zoom

SOLGT! MODERNE OG LYS ANDELSBOLIG MED STOR STUE OG PRIVAT GÅRDHAVE I FORNUFTIG FORENING

Del bolig

Velkommen til Storegade 70A – en moderne og velindrettet andelsbolig med en attraktiv beliggenhed i Esbjerg midtby. Her får du en rummelig og lys bolig med flotte materialer, gennemtænkt planløsning og en god atmosfære fra første skridt indenfor.

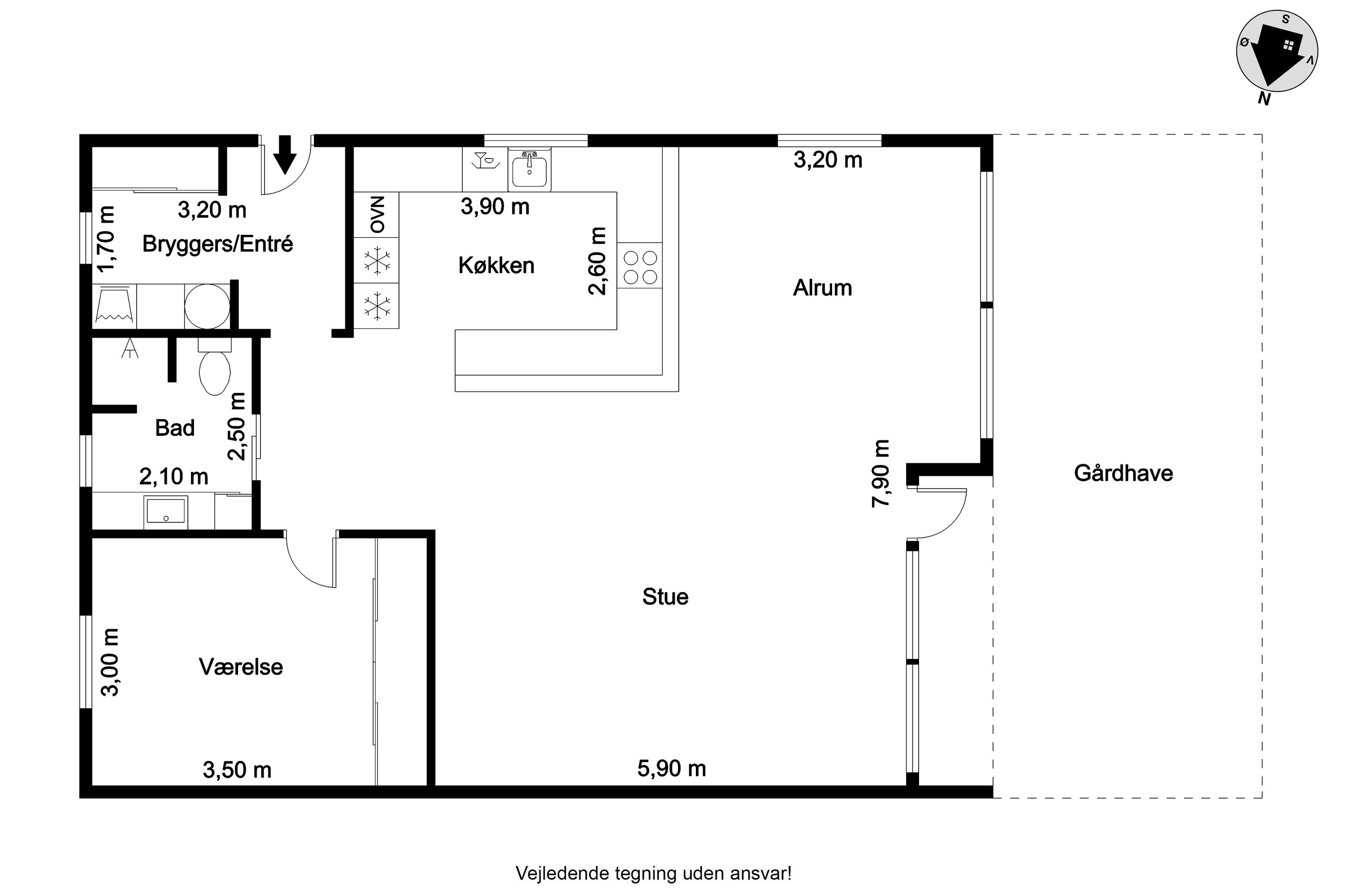
Boligen byder på et stort, åbent opholdsrum, hvor køkken, alrum og stue flyder sammen i ét lyst og imødekommende miljø. De store vinduespartier lukker dagslyset ind og skaber en naturlig forbindelse til den hyggelige gårdhave, som fungerer som en skøn forlængelse af boligen i sommerhalvåret.

Køkkenet er moderne og særdeles veludstyret med god bordplads, masser af skabsplads og en tidløs indretning med grå fronter og integrerede hvidevarer – perfekt til både madlavning og samvær.

I boligens private afdeling finder du et pænt soveværelse, et rummeligt badeværelse med bruseniche samt et praktisk bryggers med vaskesøjle og rigelig opbevaringsplads.

Den sydvendte gårdhave er et af boligens store plusser – her kan du nyde solen i fredelige omgivelser, spise ude eller skabe din egen grønne oase med krukker og planter.

Ejendommen er en del af en veldrevet og fornuftig andelsforening med sund økonomi, gode fællesforhold og en tryg atmosfære blandt naboerne. Her bor du centralt i Esbjerg med kort afstand til indkøb, offentlig transport, caféer og byliv – men stadig med ro og privatliv, når du træder indenfor.

Alt i alt en veldisponeret og indflytningsklar andelsbolig, hvor du får både komfort, kvalitet og en attraktiv beliggenhed i hjertet af Esbjerg.
Storegade 70A, 6700 Esbjerg
Pris: 0 kr. | Kontakt Bjørn Vest Hansen: 81815252
Storegade 70A, 6700 Esbjerg
Pris:
0 kr.
Få boliglån på 24 timer:
Få boliglån
Type:
Andelsbolig
Boligareal:
94
Grund:
0
Værelser:
2
Energimærke:
A2010
Bygget/ombygget:
2008
Købspris
0 kr.
Boligydelse pr. md.
0 kr.

Bjørn Vest Hansen

Ejendomsmægler, MDE, Køberrådgiver med tryghedsmærke bvh@brikk.dk +45 81815252

Boliglån

Få et boliglån på helt ned til 24 timer.

Ansøg om boliglån

Ansøg om boliglån. Servicen er gratis og vi sætter dig i kontakt med den bank / institution der vurderes at passe bedst til din situation.

Selv hvis du tidligere er blevet afvist, eller hvis du ikke kan få f.eks. et variabelt lån, plejer vores partnere at kunne hjælpe. Vi udbyder servicen i samarbejde med en række banker, realkreditinstitutter og alternative ejendomskreditlånsløsninger.

Få en gratis vurdering

Gør som 100vis af andre og sælg med Brikk. Start med en gratis vurdering fra din lokale mægler og specialist nu.

Få en gratis vurdering

Bestil Dokumenter

Tilmeld åbent hus