Plantegning Zoom

SOLGT! CHARMERENDE SOMMERHUS MED SKØN GRUND

Del bolig

Drømmer du om en rolig og charmerende base, hvor du kan nyde ferier og weekendture i naturskønne omgivelser, så bør du se nærmere på dette sommerhus, som er placeret i dejlige omgivelser på Enø. Her overtager du nøglerne til en bolig, der byder på 122 veldisponerede kvadratmeter, og udenfor får du fornøjelsen af en stor grund, der breder sig over 1.105 kvadratmeter.

Beliggenheden netop her er perfekt for dig, der søger fred, natur og nærhed til vandet. Fra adressen er der kort afstand til den rolige kystlinje – ideelt til badning, sejlads eller afslappende gåture langs vandet. Om sommeren kan du nyde livets langsomme rytme, mens områdets blomsterenge, fugleliv og grønne landskab skaber de perfekte rammer for at koble helt af. Når du har lyst til byliv, indkøb eller caféatmosfære, ligger den hyggelige by Karrebæksminde blot en kort køretur væk. Her finder du både dagligvarebutikker, spisesteder og en maritim stemning ved marinaen – og stadig med mulighed for at vende tilbage til sommerhusets fred og ro, når dagen er omme.

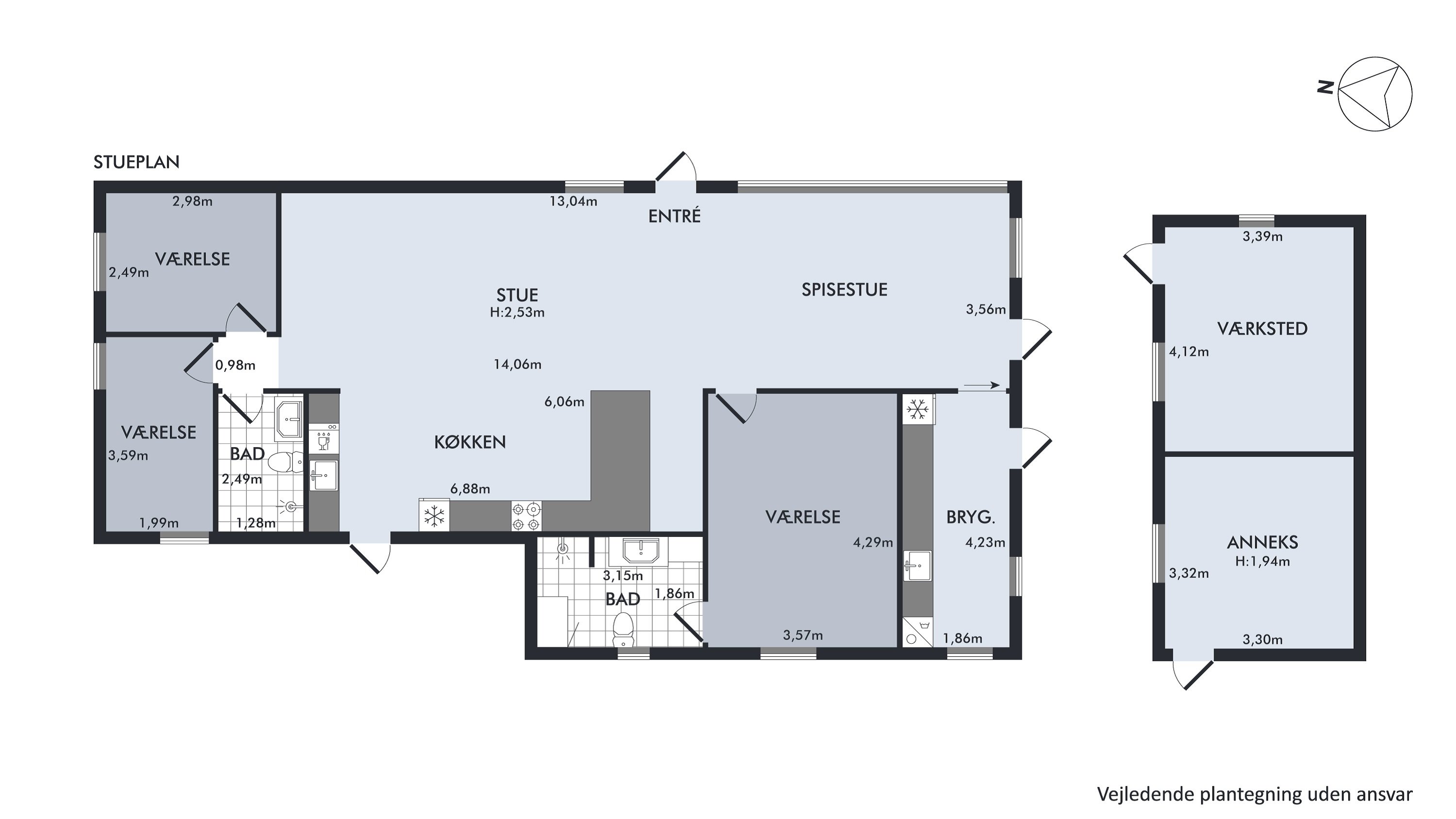
Sommerhuset præsenterer sig flot med sin mørke fibercement , der skaber en smuk kontrast til de grønne omgivelser. Grunden er anlagt vedligeholdelsesnemt med en stor græsplæne, der afskærmes af en tæt hæk. Den ene terrassen er fordelagtigt orienteret mod vest, og en del af arealet er overdækket,der er hele 3 terrasser rundt om huset, så sol i haven hele dagen er lige prikken over det skønne haveareal .der er udsigt til inderfjorden både indefra huset og flere steder i haven.så du kan nyde udelivet selv på sene aftener. Foruden selve sommerhuset rummer grunden også et udhus med værksted samt et anneks.

Indenfor møder du lyse og indbydende rum. Det naturlige samlingspunkt bliver det store, åbne opholdsrum med køkken og stue i én harmonisk forening. Det stilrene køkken byder på gode skabsløsninger og alle nødvendige hvidevarer. Stuen prydes af store vinduespartier, som lader dagslyset strømme ind og giver et skønt kig til haven. Herudover får du tre værelser, hvoraf to ligger samlet med adgang til et brusebadeværelse, mens det tredje er placeret separat og har eget, tilknyttet badeværelse. Afslutningsvis rummer sommerhuset også et praktisk bryggers.

Vi glæder os til at møde dig på en fremvisning.

Reedtzholmvej 102, 4736 Karrebæksminde
Eftertragtede adresse ....
Pris: 0 kr. | Kontakt Poul Gerdil: 61614949
Reedtzholmvej 102, 4736 Karrebæksminde
Pris:
0 kr.
Få boliglån på 24 timer:
Type:
Sommerhus
Boligareal:
122
Grund:
1105
Værelser:
5
Energimærke:
Bygget/ombygget:
1972/2022
Ejerudgift pr. md.
0 kr.
Poul Gerdil - Brikk - Ejendomsmægler, Næstved, Haslev, Karrebæksminde, Vordingborg, Holmegaard

Poul Gerdil

Ledende Salgs- og Vurderingsspecialist poul@brikk.dk +45 61614949

Boliglån

Få et boliglån på helt ned til 24 timer.

Ansøg om boliglån

Ansøg om boliglån. Servicen er gratis og vi sætter dig i kontakt med den bank / institution der vurderes at passe bedst til din situation.

Selv hvis du tidligere er blevet afvist, eller hvis du ikke kan få f.eks. et variabelt lån, plejer vores partnere at kunne hjælpe. Vi udbyder servicen i samarbejde med en række banker, realkreditinstitutter og alternative ejendomskreditlånsløsninger.

Få en gratis vurdering

Gør som 100vis af andre og sælg med Brikk. Start med en gratis vurdering fra din lokale mægler og specialist nu.

Få en gratis vurdering

Bestil Dokumenter

Tilmeld åbent hus