Plantegning Zoom

SOLGT! VELHOLDT RÆKKEHUS MED VILLAFORNEMMELSER

Del bolig

Velkommen til Haslev, en by med alt til hverdagen - og mere til - der ligger i fin pendlerafstand til såvel Næstved som Storkøbenhavn. Her kan I nu overtage et rækkehus, der mere føles som en lille villa, og boligen er desuden af nyere dato, og den fremstår lige til at flytte ind i; et godt valg for det unge par, den lille børnefamilie eller for de modne købere, der ønsker en nem bolig i ét plan.


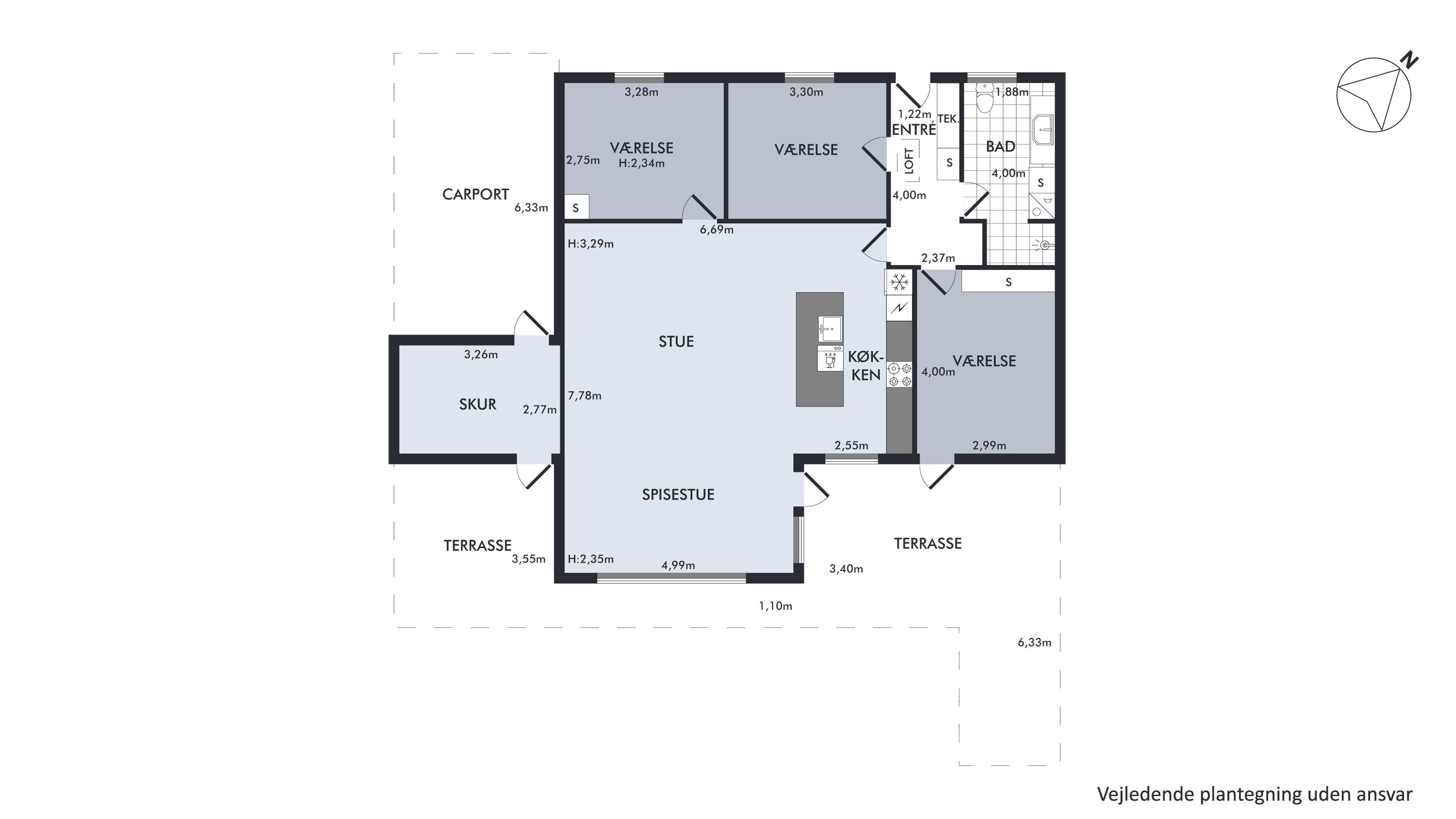
Huset er opført i lyse mursten med mørkt tegltag, og planløsningen er helt ligetil. Hoveddøren åbner til en entré med indbygget skab, og herfra kan I bevæge jer videre til et rummeligt badeværelse, tre fine værelser samt stue og køkken i ét. Det ene værelse kan I indrette til soveværelse, mens de to andre giver plads til børneværelser, kontor eller overnattende gæster. Det åbne køkken indbyder til småsnak og fælles madlavning, og i stuen er der god plads til spisebord og sofahygge.


Hele boligen fremstår velholdt, og de praktiske faciliteter er i top. Det tidløse køkken kommer med alt i hårde hvidevarer, og på badeværelset er der bruseniche og vaskesøjle. Derudover har hjemmet et dejligt lysindfald - især i stuen, hvor de høje vinduespartier åbner op mod haven.


På husets sydside - i forlængelse af stuen - får I en dejlig fliseterrasse med markise og gode solchancer. Haven er meget overskuelig, men har I grønne fingre, kan I snildt anlægge højbede eller fylde terrassen med blomsterkrukker. I får også en indbygget carport samt et udhus til værksted eller hobbysysler.


Huset ligger på en rolig vej i den sydlige del af Haslev. Stisystemer og villaveje fører jer trygt rundt til byens skoler og daginstitutioner, og på syv minutter kan I cykle op til Haslev Hallerne eller til Jernbanegade, hvor I finder dagligvarer, lokale butikker og hyggelige caféer. I byen er der også biograf og kulturcenter, og byen ligger omgivet af marker og store skovområder. Pendlermulighederne er desuden gode, for toget går fra Haslev St. til Næstved og Køge på 15 min.; til Ringsted på 30 min.; og til København på 50 min, mens bilisten fint kan pendle til hele Sydsjælland og til Storkøbenhavn.


Vi glæder os til at møde jer på en fremvisning.
Peter Panums Vej 3, 4690 Haslev
SUPER LÆKKERT RÆKKEHUS - GOD BELIGGENHED - SKAL OPLEVES Pris: 0 kr. | Kontakt Poul Gerdil: 61614949
Peter Panums Vej 3, 4690 Haslev
Pris:
0 kr.
Få boliglån på 24 timer:
Få boliglån
Type:
Rækkehus
Boligareal:
116
Kælderareal:
0
Grund:
320
Værelser:
3
Energimærke:
A2010
Bygget/ombygget:
2020
Ejerudgift pr. md.
0 kr.
Poul Gerdil - Brikk - Ejendomsmægler, Næstved, Haslev, Karrebæksminde, Vordingborg, Holmegaard

Poul Gerdil

Ledende Salgs- og Vurderingsspecialist poul@brikk.dk +45 61614949

Boliglån

Få et boliglån på helt ned til 24 timer.

Ansøg om boliglån

Ansøg om boliglån. Servicen er gratis og vi sætter dig i kontakt med den bank / institution der vurderes at passe bedst til din situation.

Selv hvis du tidligere er blevet afvist, eller hvis du ikke kan få f.eks. et variabelt lån, plejer vores partnere at kunne hjælpe. Vi udbyder servicen i samarbejde med en række banker, realkreditinstitutter og alternative ejendomskreditlånsløsninger.

Få en gratis vurdering

Gør som 100vis af andre og sælg med Brikk. Start med en gratis vurdering fra din lokale mægler og specialist nu.

Få en gratis vurdering

Bestil Dokumenter

Tilmeld åbent hus