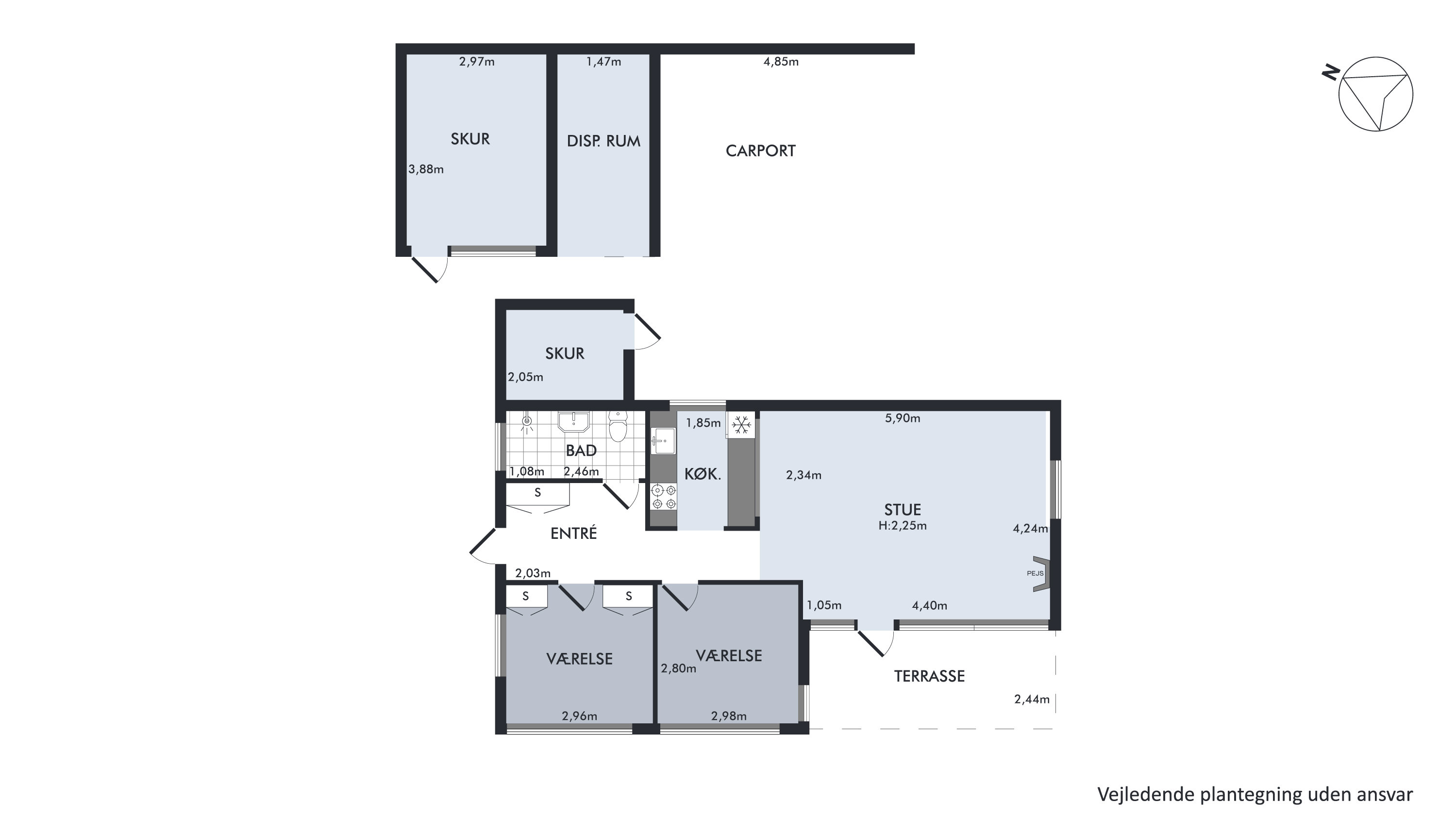
Plantegning Zoom

SOLGT! FANTASTISK UDSIGT VED JÆGERSPRIS BUGT

Del bolig

Med kursen sat mod Jægerspris Bugt skal du ikke vente længe, før betagende udsigter og idylliske fornemmelser overtager landskabet. Det er marker uden ende, evig himmel og glinsende vand, der dominerer - og med fritidshus i udkanten af sommerhuskvarteret, skal du holde ferie i første parket til det hele. Hjerteligt velkommen til.

Kombinationen af lys træfacade og blå accenter bag frodigt grønt sikrer et godt førstehåndsindtryk, når du ankommer på adressen. Bilen kan du parkere i carporten, og derfra er der ikke mange skridt ud på græsset, der udgør den 1.550 kvadratmeter store haves åbne arealer. Her vajer fanen højt i toppen af flagstangen, gamle træer strækker sig mod himlen, en skøn terrasse står klar med delvist overdække og aftensol - og hele tiden er det med udsigt til det underskønne syn af det frodige marklandskab, som først slutter, når havet møder himlen i horisonten.

Indendørs venter 62 kvadratmeter i sand sommerhusstil: træbeklædning, ny brændeovn og skønne lysindfald. Og du kan tilmed se frem til flot opgraderede rammer, for mens de fleste rum står med nymalede vægge og lofter, er det en flot kombination af helt nye gulve samt nyafhøvlede og nylakerede gulve, som dine fødder bevæger sig hen over. Dertil kommer nyt armatur og badeforhæng på badeværelset samt nyslebet bordplade og nye greb samt nyt køleskab og komfur i køkkenet, der åbner op til den pragtfulde stue. Dertil to værelser.

Og vaskefaciliteterne? De er også nye, og du finder dem i skuret, der for nylig er blevet forkælet med isolering, støbt gulv og en ny dør.

Med sådan en pragtfuld udsigt, er det ikke svært at regne ud, at det er naturens bevægelser, lyde og farver, der kommer til at danne ramme om ferielivet. Strand, dyp i havet og gåture mellem tætte træer bliver faste indslag, mens der både er indkøb, fitness, ishus og hyggelige, lokale forretninger seks minutter væk i Jægerspris.

Vi glæder os til at møde dig på en fremvisning.
Orebjergvej 18, 3630 Jægerspris
Pris: 0 kr. | Kontakt Frida Jensen: 30140141
Orebjergvej 18, 3630 Jægerspris
Pris:
0 kr.
Få boliglån på 24 timer:
Få boliglån
Type:
Sommerhus
Boligareal:
62
Grund:
1550
Værelser:
3
Energimærke:
Bygget/ombygget:
1967
Ejerudgift pr. md.
0 kr.

Frida Jensen

Salgsspecialist frida@brikk.dk +45 30140141

Boliglån

Få et boliglån på helt ned til 24 timer.

Ansøg om boliglån

Ansøg om boliglån. Servicen er gratis og vi sætter dig i kontakt med den bank / institution der vurderes at passe bedst til din situation.

Selv hvis du tidligere er blevet afvist, eller hvis du ikke kan få f.eks. et variabelt lån, plejer vores partnere at kunne hjælpe. Vi udbyder servicen i samarbejde med en række banker, realkreditinstitutter og alternative ejendomskreditlånsløsninger.

Få en gratis vurdering

Gør som 100vis af andre og sælg med Brikk. Start med en gratis vurdering fra din lokale mægler og specialist nu.

Få en gratis vurdering

Bestil Dokumenter

Tilmeld åbent hus