Plantegning Zoom
Plantegning Zoom
Plantegning Zoom

SOLGT! CHARMERENDE EJENDOM MED MULIGHED FOR HESTEHOLD

Del bolig

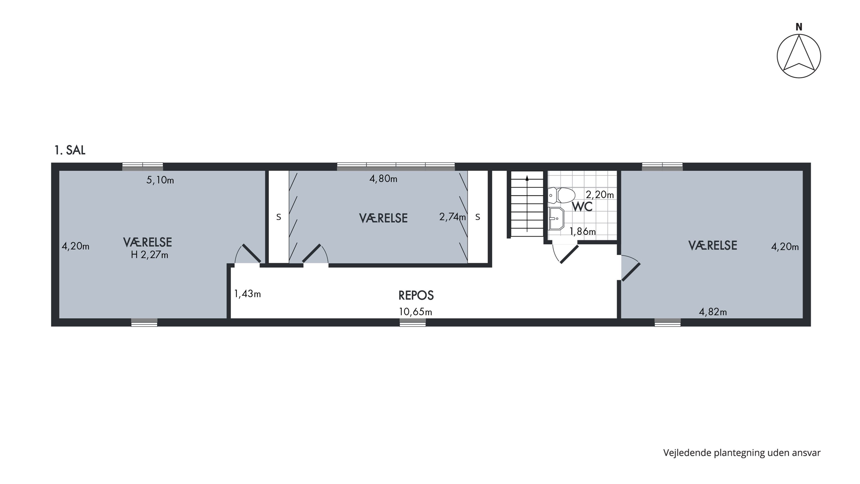
Kom med en tur til den hyggelige lille landsby, Gamby hvor der venter jer en idylliskejendom i bindingsværk med velholdt stråtag.Stuehuset byder på masser af plads med sine 240kvm hvor der især skal nævnes en stor, sydvendt stue med fritliggende bjælker, 2 badeværesler og et toilet, køkken med rummelig spiseplads, velindrettet bryggers med vaskesøjle og brusebad. På førstesalen findes tre gode værelser samt toilet. Huset er indrettet i 70’erne og trænger generelt til en modernisering.
 
Grunden er på ikke mindre en 2,3 ha. fordelt på have, frugthave, skov samt mark udlagtmed hestegræs.Til ejendommen hører desuden en 268kvm stor, solidt muret lade med støbt gulv og godeadgangsforhold gennem de høje porte. I direkte forlængelse af denne ligger den 365kvmstore isolerede svinestald. Her er mulighed for at indrette med alt fra hestebokse overværksted til gildesal – kun fantasien sætter grænser.
 
Bussen til Odense kører lige forbi og kun 4 km væk, ligger Harndrup der byder på bådeindkøbsmuligheder og skole- og pasningstilbud.Kun 10 km væk ligger den hyggelige købstad Bogense der byder på flereindkøbsmuligheder samt gode restauranter, hyggelige cafeer og det skønneste maritimemiljø.På 10 minutter, når man motorvejen og kan være i Middelfart eller Odense på under enhalv time.Så kom og oplev denne ejendom hvor kun fantasien sætter grænser for mulighederne.
Bogensevej 26, 5471 Søndersø
CHARMERENDE EJENDOM MED MULIGHED FOR HESTEHOLD Pris: 0 kr. | Kontakt Nicklas Elnegaard: 30205317
Bogensevej 26, 5471 Søndersø
Pris:
0 kr.
Få boliglån på 24 timer:
Få boliglån
Type:
FormerFarm
Boligareal:
240
Grund:
23005
Værelser:
8
Energimærke:
D
Bygget/ombygget:
1777/1976
Ejerudgift pr. md.
0 kr.
Nicklas Elnegaard - Brikk Ejendomermægler - Odense - Langeland

Nicklas Elnegaard

Salgs- og Vurderingsspecialist ne@brikk.dk +45 30205317

Boliglån

Få et boliglån på helt ned til 24 timer.

Ansøg om boliglån

Ansøg om boliglån. Servicen er gratis og vi sætter dig i kontakt med den bank / institution der vurderes at passe bedst til din situation.

Selv hvis du tidligere er blevet afvist, eller hvis du ikke kan få f.eks. et variabelt lån, plejer vores partnere at kunne hjælpe. Vi udbyder servicen i samarbejde med en række banker, realkreditinstitutter og alternative ejendomskreditlånsløsninger.

Få en gratis vurdering

Gør som 100vis af andre og sælg med Brikk. Start med en gratis vurdering fra din lokale mægler og specialist nu.

Få en gratis vurdering

Bestil Dokumenter

Tilmeld åbent hus