SOLGT!
Hvis I drømmer om et fristed med en super beliggenhed i naturskønne omgivelser ved Kolding, så læs med her. Med nøglerne til Binderup Strandpark 52 får I kort sagt ideelle rammer om jeres kommende ferier og forlængede weekender, og I skal ikke indgå nogen kompromiser.
Fritidshuset ligger i et dejligt sommerhusområde, hvor der hersker en helt særlig atmosfære. Området består nemlig primært af små, lukkede veje og grønne omgivelser, hvilket skaber ro og tryghed; perfekt, når familiens yngste medlemmer går på eventyr eller på jagt efter nye legekammerater. På adressen præsenteres I først og fremmest for den 375 kvadratmeter store matrikel, og den er anlagt med indkørsel, carport og en nem have med plads til leg og aktiviteter. Dertil kommer selvfølgelig de hyggelige terrassemiljøer, som er delvist overdækket og giver mulighed for at nyde solen uanset tidspunktet på dagen.
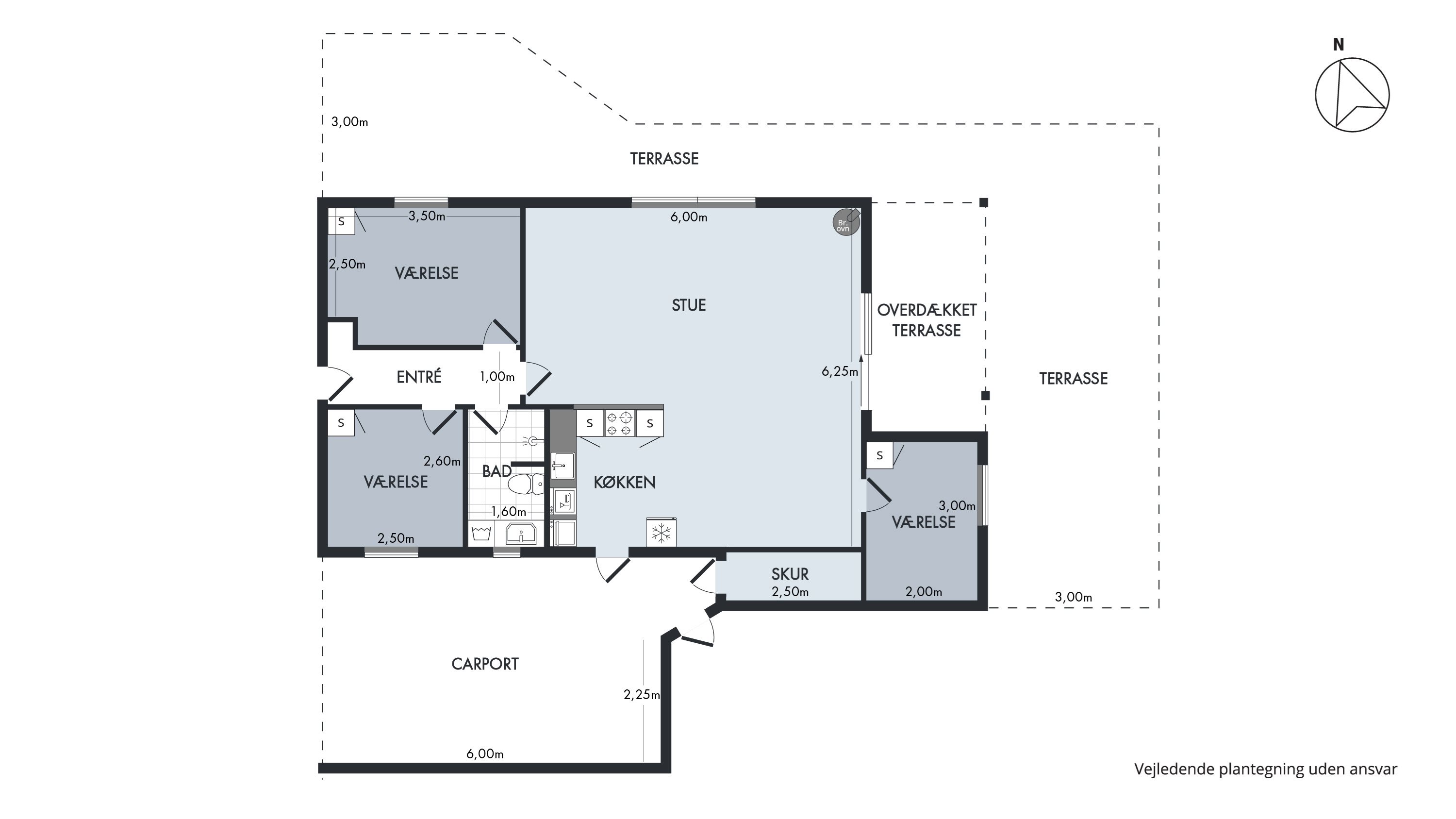
Indendørs venter en hyggelig og hjemlig atmosfære, som er svær ikke at forelske sig i allerede ved første besøg. Planløsningen fordeler sig over en entré, tre værelser, et badeværelse og et dejligt opholdsrum, hvor køkkenet ligger i åben forbindelse med spise- og dagligstuen.
Denne ejendom ligger i et smørhul tæt på alt. Med denne beliggenhed har I kun få minutters gang til Binderup Strand, som er børnevenlig med fint sand og lavt vand - her kan solskinsdagene altså tilbringes med forfriskende dukkerter, solbadning og strandtennis, mens de yngste kan bygge sandslotte, fange krabber og lede efter flotte muslingeskaller. Af udflugtsmål kan vi bl.a. fremhæve Legoland og LEGO House i Billund, mens Kolding byder på butiksliv og kulturelle arrangementer for folk i alle aldre. Og ellers kan I køre til Givskud Zoo, hvor I både kan gå og køre rundt, mens I udforsker det rige dyreliv. Det her er med andre ord en virkelig attraktiv beliggenhed med både natur og byliv tæt på.
Sommerhuset er udlejet via. NovaSol.
Vi glæder os til at møde jer på en fremvisning.
Binderup Strandpark 52, Binderup, 6091 Bjert
Pris: 0 kr.
| Kontakt Rasmus Bent: 53703413
Binderup Strandpark 52, Binderup, 6091 Bjert
Boliglån
Få et boliglån på helt ned til 24 timer.